Fernandez Pizarro

Ventanas Deslizantes

Instalación y Reparación en Madrid y Alrededores

Ventana Osciloparalela PVC

Este sistema combina la funcionalidad de una ventana practicable con un herraje especial que permite que la hoja deslice suavemente sobre carriles. Con la hoja cerrada, ofrece los mismos niveles de aislamiento térmico y acústico que una ventana practicable, y su apertura puede automatizarse para mayor comodidad.

ventana-deslizable-Elevadora-instalacion-madrid

Ventana Elevadora a Medida

Diseñada para grandes huecos, la ventana elevadora permite disfrutar de vistas panorámicas gracias a hojas de hasta 3 metros de ancho y 300 kg de peso que se deslizan sin esfuerzo. Ofrece altas prestaciones de aislamiento térmico y acústico, integrando el exterior a tu hogar.

Ventana iSlide PVC

La iSlide destaca por su diseño esbelto y moderno, con perfiles de solo 35 mm que maximizan la luminosidad sin comprometer el aislamiento térmico. Es una solución de alta gama que combina estética refinada y eficiencia energética.

Modern villa, outdoor, view from the garden

Ventana iSlide PVC

Ventanas-deceunick-instalacion-madrid
Ventana-iSlide-PVC

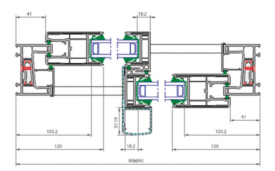
La corredera aislante.

Se acabó tener que elegir entre ahorro, luminosidad y diseño. Este sistema es la alternativa ideal a otras correderas, ya que a las prestaciones de aislamiento más altas que proporciona la Thermofibra, hay que añadir un acabado elegante gracias a su cuidado diseño. Además, permite tener la máxima luminosidad gracias a su reducida sección central de sólo 35 mm, la más esbelta y elegante de todos los sistemas deslizantes de PVC, y ello sin renunciar a las altas prestaciones de una buena ventana.

Este nuevo sistema realza las prestaciones de aislamiento y rigidez de la innovadora y exclusiva tecnología de la Termofibra, que nos permitirá disfrutar de un aislamiento térmico y acústico muy superior a lo esperado en cualquier otra ventana deslizante.

CARACTERÍSTICAS TÉCNICAS

Prestación Valor
Transmitancia térmica Uf (W/m² K) = 1.4
Estanqueidad al agua clase 7B
Permeabilidad al aire clase 4
Resistencia al viento clase B2
Aislamiento acústico de 28 a 33 dB
Ensayo de referencia 2460 x 2180 mm en 2 hojas
Característica Especificación
Material PVC
Profundidad 70 mm en marco, 46 mm en hoja
Marco PVC con refuerzo acero
Hoja PVC con Thermofibra
Colores según carta
Tipo de apertura corredera
Acristalamientos 28 mm
Herrajes Especificación
Capacidad hasta 200kg
Herraje hasta 4 puntos de cierre
Bulones tipo champiñón de serie

Opción Triple carril

Zapata de 2 cm

Zapata de 2 cm

Sección Horizontal

Uf (W/m²·K) Ug (W/m²·K) Uw (W/m²·K)
1.4 1.1 (4/18Ar/6BE) 1.25
1.4 1.3 (4/20/4BE) 1.41
1.4 1.4 (4/18/6BE) 1.48
Valores para ventana de 2 hojas correderas de 1400 x 1400 mm
Dimensiones máximas por hoja (ancho x alto, en mm, 2 hojas)
Hoja estándar 1840/2446
Peso/hoja hasta 200 kg
Dimensiones mínimas por hoja (ancho x alto, en mm, 2 hojas)
Hoja estándar 330/286
Peso/hoja 0 kg

Ventana PREMISLIDE76 PVC

CARACTERÍSTICAS TÉCNICAS

  • Sistema de 76mm con 5 cámaras estancas y doble junta.
  • Diseño de líneas rectas y hoja retranqueada en un perfil con una estética muy cuidada.
  • Transmitancia térmica de la carpintería (Uf) desde 1,10 W/m²K.
  • Transmitancia térmica de la ventana (Uw) desde 0,83 W/m²K.
  • Reducción acústica de hasta 47 dB.
  • Refuerzo de acero zincado de alta inercia con gran desarrollo que permite aumentar la rigidez del sistema y que conforma una cámara adicional incrementando el aislamiento del conjunto.
  • Profundidad del galce de entre 16 y 50 mm.
  • Canal de herraje estándar con un rebaje que facilita el montaje y estabilidad de las piezas.
  • Junquillos con juntas coextrusionadas con cuidada apariencia visual y de fácil limpieza.
  • Unión de las esquinas soldadas que aumenta la estabilidad mecánica del conjunto.
  • Disponible en toda la gama de colores foliados de Kömmerling.
  • Generación Xtrem: materia prima greenline® 100% reciclable. Formulada para la climatología de la península ibérica.
Ventanas-Kommerling-instalacion-madrid

CARACTERÍSTICAS TÉCNICAS

DIMENSIONES MÁXIMAS POR HOJA
Anchura máxima 2200 mm
Anchura mínima 610 mm
Altura máxima 2200 mm
Altura mínima 520 mm
Peso máximo por hoja hasta 250 kg
Las medidas máximas mostradas son orientativas ya que éstas varían en función del tipo de perfil, del tipo de apertura, del refuerzo, del color de la perfilería, etc. Para más detalle solicite los ábacos.

Ventanas Plegables PVC

Las puertas plegables de Sumum están fabricadas a partir de sistemas practicables y utilizan un herraje especial que permite plegar las hojas en forma de librillo, logrando una apertura máxima del hueco y una integración fluida entre espacios interiores y exteriores.

Open Max

OpenMAX es un sistema modular innovador donde cada hoja se desliza y coloca de manera independiente, transformando espacios y facilitando la conexión entre estancias o con el exterior, como jardines o terrazas.

Prestaciones térmicas excepcionales

Garantiza el bienestar en casa sin que importen las condiciones meteorológicas.

Prestaciones lumínicas y solares

Garantiza el bienestar en casa sin que importen las condiciones meteorológicas.

Diseño fino y elegante

Estilo minimalista y luminosidad, ofreciendo una apertura total y un excelente rendimiento térmico.

Permeabilidad al aire reforzada

Hermeticidad, aislamiento y estanqueidad con la máxima clasificación según norma.

Solicite su Presupuesto Personalizado

Con más de 25 años instalando cerramientos de PVC en Madrid, somos su mejor opción para transformar terrazas, porches y balcones en espacios habitables durante todo el año. Solicite su presupuesto gratuito sin compromiso llamando al 91 517 15 55 o visitándonos en horario de lunes a viernes de 9 a 14h y de 16 a 19h.

Atendemos en todo Madrid y alrededores

Tienda y taller en Carabanchel
Calle Gómez de Arteche, 34,
28044 Madrid

Contáctanos hoy mismo

Para recibir una atención cercana y profesional sin compromiso.​

Solicita presupuesto gratuito

Dá el primer paso hacia un espacio más cómodo y personalizado.